RESTAURANT PARKING
Diane’s Place does not offer a designated parking lot. We recommend our guests utilize the free street parking surrounding our main entrance on 14th Ave. There is also free street parking available on Marshall St. & Grand St. Located within one block of our 14th St. entrance.
If you have any questions about parking, please contact the restaurant directly at 612-489-8012.
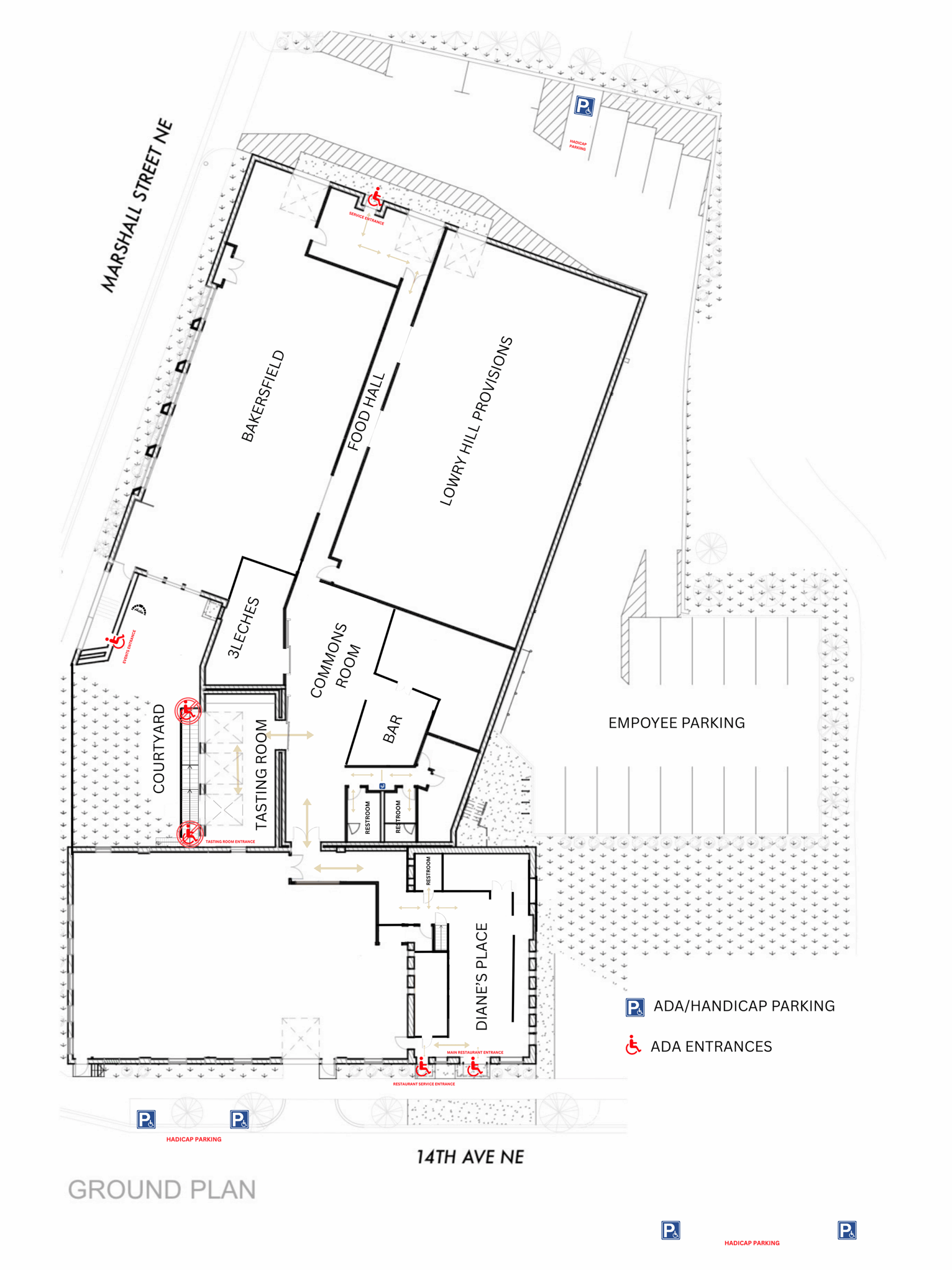
ADA ENTRANCE AND PARKING
If you or a guest requires ADA-accessible parking or entry, we offer one ADA parking space located in front of the main restaurant entrance at 107 14th Ave NE, Minneapolis, MN 55413, as well as one additional ADA space in our parking lot.
We have three ADA-accessible entrances:
• Main entrance to Diane’s Place
• Restaurant service entrance
• Food Building service entrance
Guests attending events at Events by Diane’s who require ADA parking and access are encouraged to use the ADA parking space located in the parking lot. Upon arrival and parking, please contact 612-315-3373 for assistance with entry.
Please note: while our courtyard entrance off Marshall St. NE is ADA accessible, guests are not able to enter the building directly from the courtyard and will need to re-enter through one of the ADA-accessible entrances listed above.
If additional ADA-accessible parking is needed, please contact us in advance:
• Restaurant inquiries: info@dianesplacemn.com
• Event space inquiries: events@dianesplacemn.com

EVENT PARKING
Our events entrance is located off Marshall St. NE at 1401 Marshall St. NE Minneapolis, MN 55413.
We provide off-street parking only, along:
• Marshall St. NE
• 14th Ave NE
• Grand St. NE
If additional ADA/handicap parking is required please email events@dianesplacemn.com.

For snow emergencies, please visit www.minneapolismn.gov. Please follow parking guidelines for odd/even parking regulations during snow emergencies.

For more information on parking for Diane’s Place or Events by Diane’s please email us at:
info@dianesplacemn.com (restaurant)
events@dianesplacemn.com (events)
